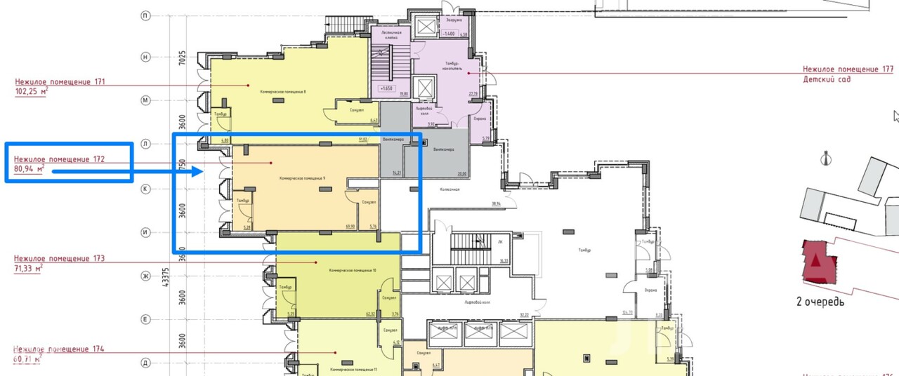
Помещение своб.назн., 80,9 м², 1/19 эт.

Челябинская область, Челябинск, улица Труда, 187Д

22 663 200 руб.

280 139 руб./м²

Описание Объект №3696

АН "Первая Линия" — Ваш эксперт в сфере коммерческой недвижимости!

🏢 Предлагаем в покупку коммерческое помещение - помещение правильной формы 80,9 кв.м. в ЖК «Грани» | Центр Челябинска
💼 Просторное помещение с потолками 4,83 м в новом жилом комплексе комфорт-класса — идеальный выбор для инвестиции с потенциалом роста.

📍 Локация:
г. Челябинск, ул. Труда, 2 корпус, ЖК «Грани»
Интенсивный автомобильный и пешеходный трафик.

💡 Почему стоит купить:
📈 Высокий инвестиционный потенциал — центр города, развивающаяся инфраструктура и крупные точки притяжения.
🏙 Отдельные 2 входа — идеально для магазина, кафе, шоурума, клиники или банка.
📊 Гибкая планировка и высокая ликвидность — помещение в формате open-space, легко делится на зоны или на 2 арендатора.

🧭 О ЖК «Грани»:
4 жилых корпуса с коммерческими вставками, современная архитектура, подземный паркинг на 242 м/м, дома от 6 до 19 этажей, эксплуатируемая кровля у коммерции

Звоните!

  • Этаж :

  • Высота потолков :

  • Вход :

  • Площадь :

  • 1

  • 4.8

  • Отдельный

  • 80,9 м²

  • Этажность :

  • Доступ на объект :

  • Кол-во комнат :

  • Тип здания :

  • 19

  • 24/7

  • 0

  • Жилой дом

Карта Челябинск, улица Труда, 187Д

Похожая недвижимость

Помещение своб.назн., 124,7 м², 1/18 эт.
  • Продажа
22 500 000 руб.

Коммерческая недвижимость

Помещение своб.назн., 124,7 м², 1/18 эт.

Челябинск, улица Университетская Набережная, 62

Помещение своб.назн., 225,4 м², 3/17 эт.
  • Продажа
22 540 000 руб.

Коммерческая недвижимость

Помещение своб.назн., 225,4 м², 3/17 эт.

Челябинск, улица Свободы, 4

Торговая площадь, 240 м², 1/1 эт.
  • Продажа
22 000 000 руб.

Коммерческая недвижимость

Торговая площадь, 240 м², 1/1 эт.

Челябинск, улица Пушкина, 1

Помещение своб.назн., 397 м², 3/5 эт.
  • Продажа
25 800 000 руб.

Коммерческая недвижимость

Помещение своб.назн., 397 м², 3/5 эт.

Челябинск, улица Сони Кривой, 73

Помещение своб.назн., 253,6 м², 3/17 эт.
  • Продажа
25 360 000 руб.

Коммерческая недвижимость

Помещение своб.назн., 253,6 м², 3/17 эт.

Челябинск, улица Свободы, 4

Помещение своб.назн., 250 м²
  • Продажа
22 500 000 руб.

Коммерческая недвижимость

Помещение своб.назн., 250 м²

Челябинск, Каслинская улица, 38А

Помещение своб.назн., 137,2 м², 1/30 эт.
  • Продажа
21 952 000 руб.

Коммерческая недвижимость

Помещение своб.назн., 137,2 м², 1/30 эт.

Челябинск, Каслинская улица, 62к1