Торговая площадь, 272,3 м², 1/17 эт.

Челябинская область, Копейск, Коммунистический проспект, 28

436 000 руб. / мес.

1 602 руб./м²

Описание Объект №3598

АН "Первая линия"- Ваш эксперт в коммерческой недвижимости.

г. Копейск пр.Коммунистический 28
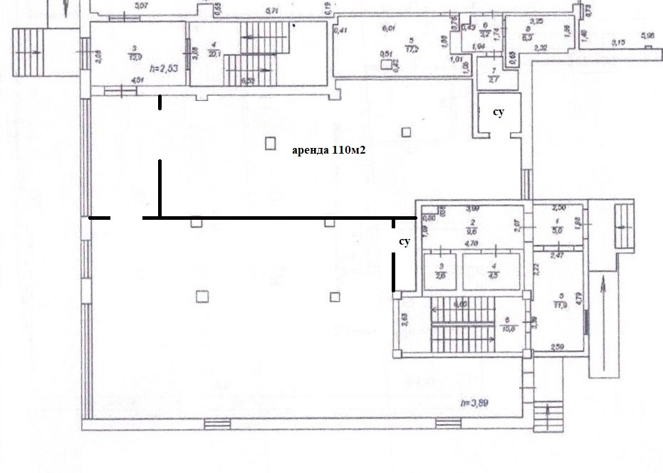
Площадь: 272,3м2

Можно арендовать: 111м2, 161,3м2 или 272.3м2

+ Предлагаем в аренду торговое помещение на первом этаже нового дома площадью 272.3м2
+ Отличное местоположение
+ Удобная,большая парковка
+ Свободная планировка,
+ Наличие второго входа
+ Высокие потолки h-4
+ Отличная торговая площадь расположенная на первом этаже монолитного дома, на самой оживленной улице Копейска

Интересно? Звоните!
Обязательно с вами договоримся!

  • Этаж :

  • Высота потолков :

  • Вход :

  • Эл. мощность кВт :

  • Тип здания :

  • 1

  • 4

  • Отдельный

  • 30

  • Жилой дом

  • Этажность :

  • Доступ на объект :

  • Кол-во комнат :

  • Площадь :

  • 17

  • 24/7

  • 1

  • 272,3 м²

Карта Копейск, Коммунистический проспект, 28