Произв.-пром. помещение, 1807 м², 1/2 эт.

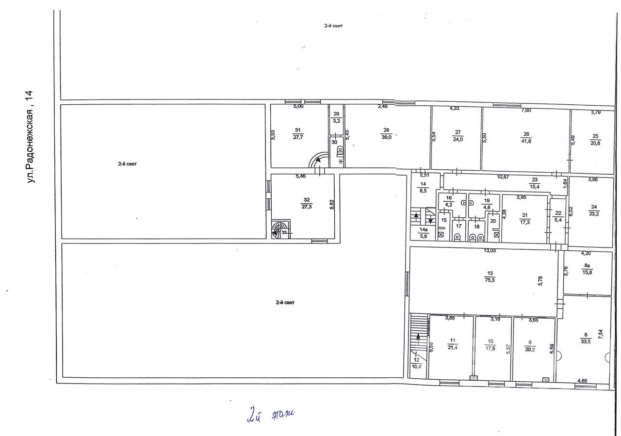
Челябинская область, Челябинск, Радонежская улица, 14

625 000 руб. / мес.

346 руб./м²

Описание Объект №3612

АН "Первая линия"- Ваш эксперт в коммерческой недвижимости.


г. Челябинск, ул. Радонежская
Площадь: 1807 м2

Отличные подъездные пути

Пространство хорошо делится на 2-3 предприятия


+ Предлагаем в аренду производственное помещение 1805 м2

+ Можно арендовать по частям(площади и стоимость уточняйте)

+ 3 теплых помещения с большими воротами + офисные помещения на втором этаже

+ Есть холодный склад

+ 160 кВт
+ Отличное местоположение,удобные подъездные пути
+ Большая парковка
+ Офисные помещения на втором этаже
+ Высокие потолки h-8
+ Центральные коммуникации

За более подробной информацией обращайтесь

  • Этаж :

  • Высота потолков :

  • Вход :

  • Эл. мощность кВт :

  • Тип здания :

  • 1

  • 8

  • Отдельный

  • 160

  • Здание свободного назначения

  • Этажность :

  • Доступ на объект :

  • Кол-во комнат :

  • Площадь :

  • 2

  • 24/7

  • 0

  • 1807 м²

Карта Челябинск, Радонежская улица, 14