Помещение своб.назн., 285 м²

Челябинская область, Копейск, Коммунистический проспект, 28

120 000 руб. / мес.

422 руб./м²
Помещение своб.назн., 285 м²

Описание Объект №3583


"Первая Линия" - ваш эксперт в сфере коммерческой недвижимости.

Предлагаем в аренду торговое помещение в центре Копейска

Локация:

  • Расположение на самом оживленном перекрестке Копейска, в окружении плотного жилого массива
  • Первая линия, высокий пешеходный и автомобильный трафик
  • Вход в помещение расположен на пешеходной тропе, что дополнительно повышает проходимость.

Преимущества:

  • Удобная парковка перед помещением.
  • Отличная, свободная планировка, подойдет под любую сферу
  • Объект прошел юридическую проверку, документы готовы к сделке.
  • Дом востребован среди арендаторов. Доказательство тому - крупные федеральные сети, работающие в смежных помещениях

Более подробная информация, а также запись на просмотр по телефону.


  • Этаж :

  • Высота потолков :

  • Вход :

  • Эл. мощность кВт :

  • Тип здания :

  • Цокольный этаж

  • 3

  • Отдельный

  • 5

  • Жилой дом

  • Этажность :

  • Доступ на объект :

  • Кол-во комнат :

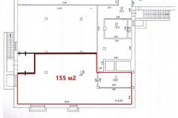
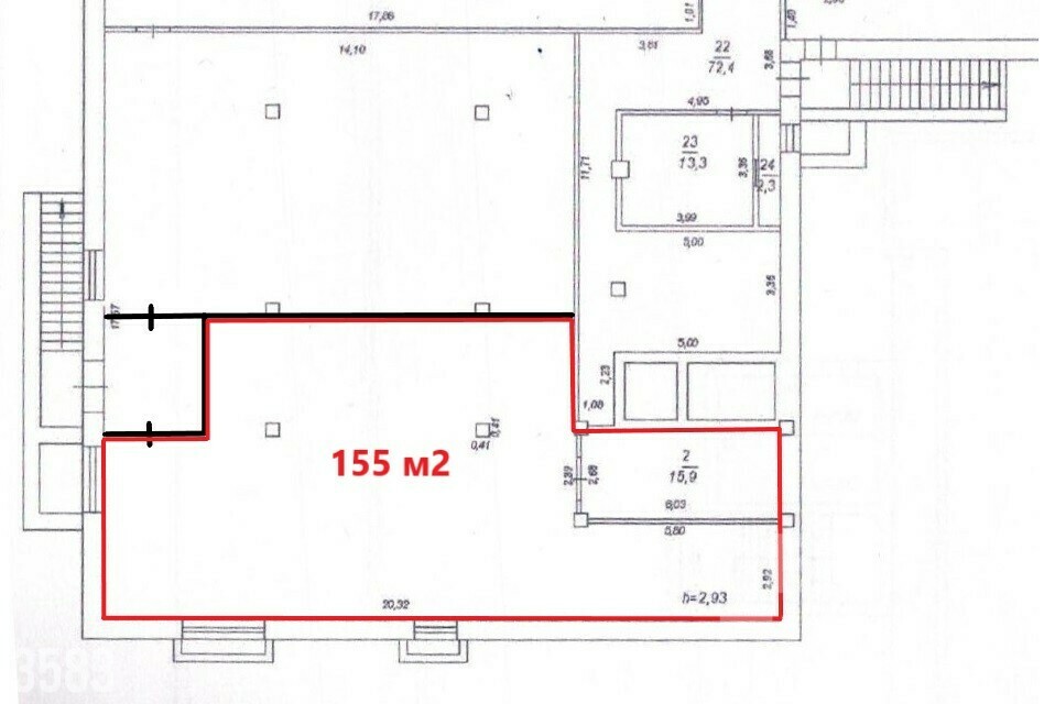
  • Площадь :

  • 15

  • 24/7

  • 0

  • 285 м²

Карта Копейск, Коммунистический проспект, 28

Похожая недвижимость

Магазин, 120 м², 1/2 эт.
  • Аренда
120 000 руб. / мес.

Коммерческая недвижимость

Магазин, 120 м², 1/2 эт.

Копейск, проспект Победы, 18

Торговая площадь, 110 м², 1/17 эт.
  • Аренда
125 000 руб. / мес.

Коммерческая недвижимость

Торговая площадь, 110 м², 1/17 эт.

Копейск, Коммунистический проспект, 28