Помещение своб.назн., 120 м²

Челябинская область, Копейск, Коммунистический проспект, 28

55 000 руб. / мес.

459 руб./м²
Помещение своб.назн., 120 м²

Описание Объект №3582


"Первая Линия" - ваш эксперт в сфере коммерческой недвижимости.

Предлагаем в аренду торговое помещение в центре Копейска

Локация:

  • Расположение на самом оживленном перекрестке Копейска, в окружении плотного жилого массива
  • Первая линия, высокий пешеходный и автомобильный трафик
  • Вход в помещение расположен на пешеходной тропе, что дополнительно повышает проходимость.

Преимущества:

  • Удобная парковка перед помещением.
  • Отличная, свободная планировка, подойдет под любую сферу
  • Объект прошел юридическую проверку, документы готовы к сделке.
  • Дом востребован среди арендаторов. Доказательство тому - крупные федеральные сети, работающие в смежных помещениях

Более подробная информация, а также запись на просмотр по телефону.


  • Этаж :

  • Высота потолков :

  • Вход :

  • Эл. мощность кВт :

  • Тип здания :

  • Цокольный этаж

  • 3

  • Отдельный

  • 5

  • Жилой дом

  • Этажность :

  • Доступ на объект :

  • Кол-во комнат :

  • Площадь :

  • 15

  • 24/7

  • 0

  • 120 м²

Карта Копейск, Коммунистический проспект, 28

Похожая недвижимость

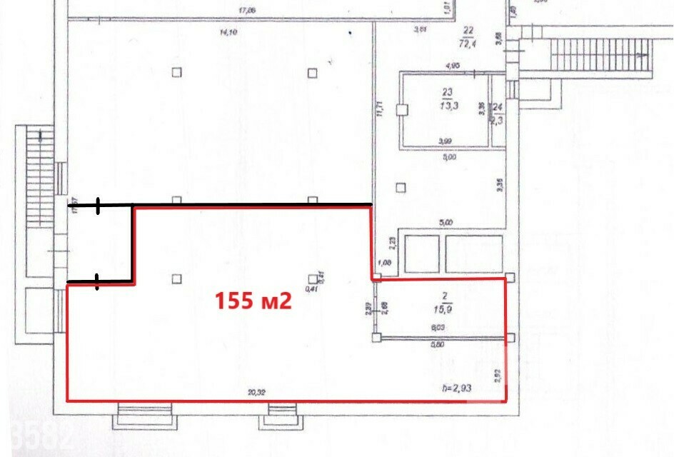
Помещение своб.назн., 155 м²
  • Аренда
65 000 руб. / мес.

Коммерческая недвижимость

Помещение своб.назн., 155 м²

Копейск, Коммунистический проспект, 28