Магазин, 740 м²

Челябинская область, Челябинск, улица Курчатова, 25

650 руб. - м² / мес.

Магазин, 740 м²

Описание Объект №3668

АН "Первая линия"- Ваш эксперт в коммерческой недвижимости.

г. Челябинск, Курчатова 25
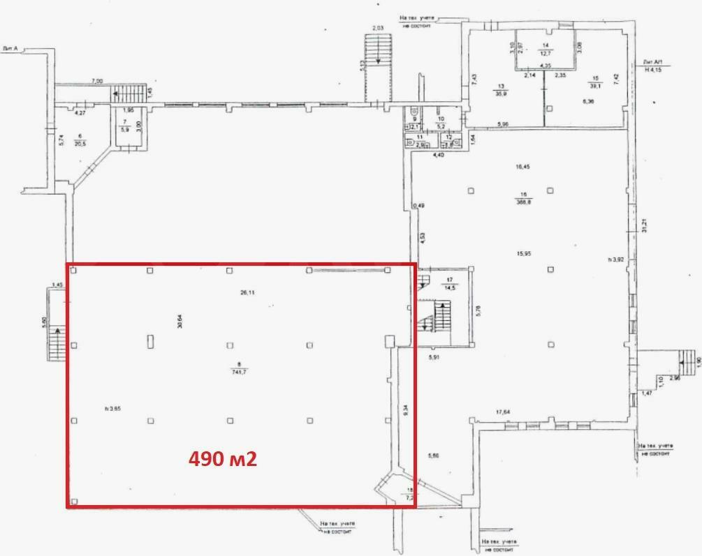
Этаж: цокольный
Площадь: 740м2
Стоимость 650р за м2
Возможны варианты аренды от 450м2


- Предлагаем в аренду помещение в цокольном этаже
- Отдельно стоящее здание
- В здании якорные арендаторы Монетка,УБрИР, Кухни Линда
- Есть зона разгрузки
- Помещение можно использовать как: ресторан,офис,магазин,пвз,склад,мед центр.
- Отлично подойдет под любой вид бизнеса
- Свободная планировка на колоннах, помещение правильной формы!
- Хорошая транспортная доступность

  • Этаж :

  • Высота потолков :

  • Вход :

  • Эл. мощность кВт :

  • Тип здания :

  • Цокольный этаж

  • 2.8

  • Общий

  • 50

  • Здание свободного назначения

  • Этажность :

  • Доступ на объект :

  • Кол-во комнат :

  • Площадь :

  • 1

  • 24/7

  • 0

  • 740 м²

Карта Челябинск, улица Курчатова, 25

Похожая недвижимость

Помещение своб.назн., 143 м², 1/7 эт.
  • Аренда
750 руб. - м² / мес.

Коммерческая недвижимость

Помещение своб.назн., 143 м², 1/7 эт.

Челябинск, проспект Ленина, 21В

Помещение своб.назн., 650 м²
  • Аренда
600 руб. - м² / мес.

Коммерческая недвижимость

Помещение своб.назн., 650 м²

Челябинск, Каслинская улица, 38А

Помещение своб.назн., 200 м²
  • Аренда
650 руб. - м² / мес.

Коммерческая недвижимость

Помещение своб.назн., 200 м²

Челябинск, Каслинская улица, 38А