Магазин, 2500 м², 1/2 эт.

Челябинская область, Челябинск, улица Курчатова, 25

279 000 000 руб.

111 600 руб./м²

Описание Объект №3426

АН "Первая Линия" - Ваш эксперт в сфере коммерческой недвижимости.

МАП по запросу

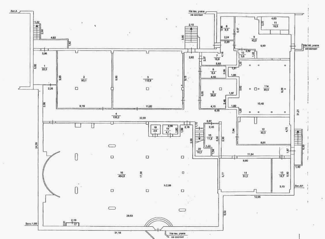
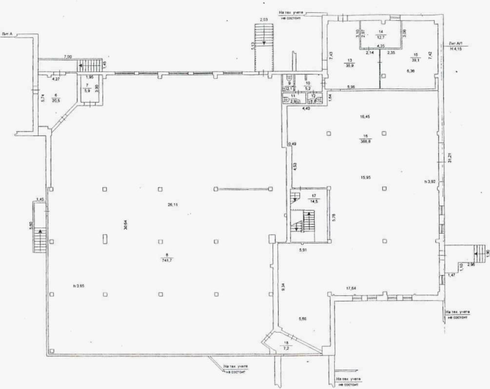
- Предлагаем в покупку отдельно стоящее здание общей площадью 2500м2 на собственном земельном участке 1600м2!!!
- В здании 2 этажа, 1й и цоколь.
- Арендаторы на первом этаже: Монетка(350м2), Кухни Линда(90м2), Банк УБрИР (820м2)
- Цокольный этаж: Монетка(300м2), Мебельный салон(450м2), Аренда под склад (200м2)
- 150квт электроэнергии с возможностью увеличения
- Зона разгрузки для фур
- Потолки от 4-5м2 на первом этаже
- Эксплуатируемая крыша
- Хороший пешеходный и автомобильный трафик
- Отличная видимость с дороги
- Объект расположен возле остановки общественного транспорта
- Перед объектом есть парковка



Заинтересовало предложение? Звоните!

  • Этаж :

  • Высота потолков :

  • Вход :

  • Эл. мощность кВт :

  • Тип здания :

  • 1

  • 4.5

  • Отдельный

  • 150

  • Здание свободного назначения

  • Этажность :

  • Доступ на объект :

  • Кол-во комнат :

  • Площадь :

  • 2

  • 24/7

  • 0

  • 2500 м²

Карта Челябинск, улица Курчатова, 25